

The project site, once a funeral home, was severely damaged by fire and left vacant for many years. Rather than demolishing the site entirely, the design retains and stabilizes the existing walls with a new steel structure. This allows the building to be adapted into a safe and modern childcare center while preserving its historical presence in the neighborhood.


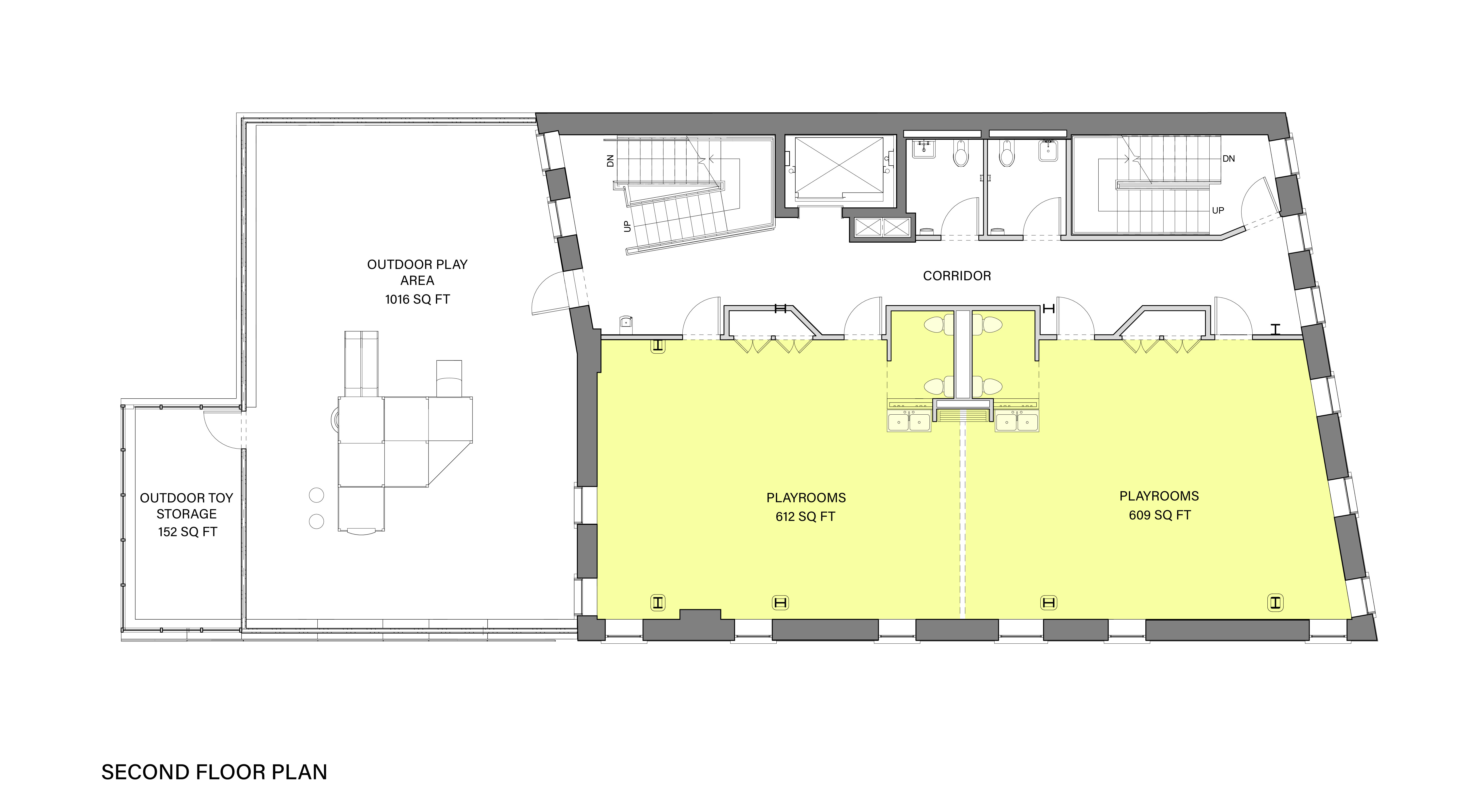
Inside, the CHCCC’s three primary programs—the Family Day Care Network, the Child Care Center, and the Head Start Family Day Care Program—are brought together in classrooms designed to be playful and open. Partition walls allow the different groups to interact in shared spaces when needed, whether through communal play areas or shared facilities.

Classroom Space

Classroom Space

Wood Ceiling Detail

One of the key elements in the design is light. A series of light scoops draw daylight deep into the playrooms, creating bright and cheerful interiors.

The offices on the third floor are strategically set back from the subway tracks to maximize the natural light to the playrooms below. On the second floor, a dedicated terrace provides an outdoor play area. Secured with a 10 foot climb-proof fence, the outdoor area offers the children access to fresh air and safe play. The area is located on the other end of the building, away from the subway tracks, offering children fresh air and a safe, private environment.



The program integrates offices, a full-service kitchen, and flexible spaces to accommodate a range of daily activities, establishing the Childcare Center as a vital anchor for the neighborhood. Since 1990, the Childcare Corporation has served families in the Cypress Hills community with a mission to strengthen the neighborhood by expanding access to affordable childcare creating entrepreneurship opportunities for women. The new center brings this mission to life by consolidating programs expanding the organization's capacity to serve.
